Novostavba rodinného domu ve stadiu rozestavěnosti
Hledáte moderní dům, který si můžete dokončit přesně podle svých představ? Místo, kde si vytvoříte skutečný domov pro svou rodinu?
Na okraji obce Domašov nabízíme novostavbu rodinného domu o užitné ploše 132 m² se zahradou.
Jedná se o polovinu dvojdomu se samostatným vstupem.
Dům je v současnosti ve stavu rozestavěné stavby a prodává se právě v tomto stavu před dokončením. Budoucí majitel si tak může dům dokončit podle vlastních požadavků, materiálů a standardu.
Součástí kupní ceny je již významná část dokončení stavby, konkrétně:
• podlahové vytápění
• podlahy (bez finálních krytin)
• podhledy
• kompletní zemní práce kolem domu
• přístřešek pro automobil
• příjezdová cesta
• terasa o velikosti 30 m²
Velikost zahrady je možné zvolit dle dohody.
Naopak součástí ceny není:
• instalace venkovních žaluzií
• kuchyňská linka
• obklady koupelny
• finální podlahové krytiny
• elektrický kotel
Dispozice domu je navržena prakticky pro každodenní rodinný život.
nadzemní podlaží
• vstupní chodba
• samostatné WC
• sklad
• technická místnost
• koupelna
• hlavní obytný prostor s kuchyňským koutem a jídelnou
Tento obytný prostor tvoří přirozené centrum domu a nabízí dostatek místa pro společné chvíle celé rodiny.
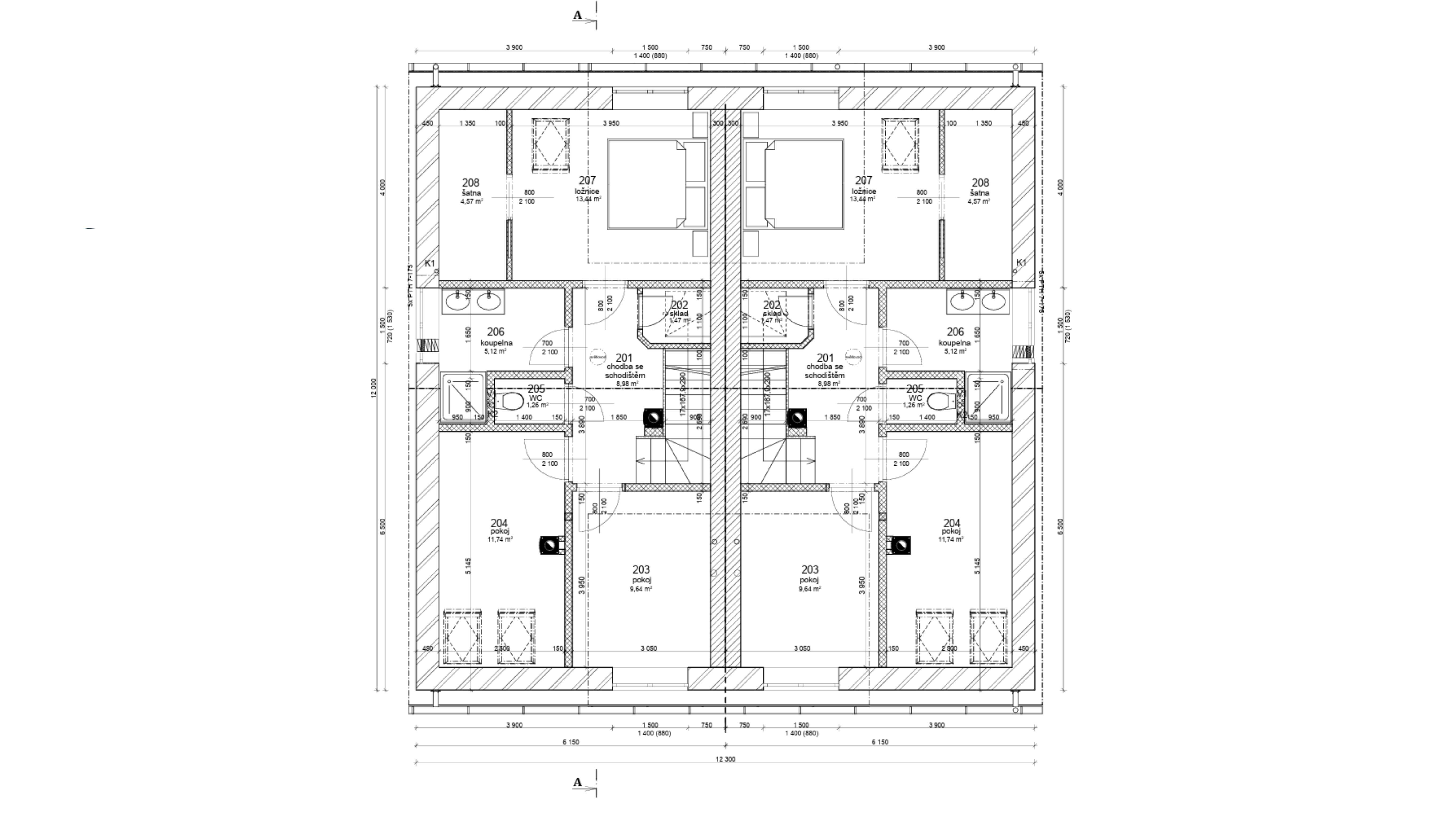
Podkroví
• chodba se schodištěm
• dva samostatné pokoje
• ložnice
• šatna
• koupelna
• samostatné WC
Toto patro poskytuje dostatek soukromí pro jednotlivé členy domácnosti.
V zadní části domu bude terasa o velikosti 30 m² a zahrada, která je ideálním místem pro letní posezení, grilování nebo odpočinek.
Stav dokončení
Nemovitost se prodává ve stavu před dokončením s již realizovanými klíčovými prvky stavby. Kupující si dokončí interiérové prvky dle vlastního vkusu a standardu.
Kupující může dům dokončit svépomocí nebo prostřednictvím vlastního dodavatele. Současně je možné se s prodávajícím individuálně dohodnout na dokončení domu do finální podoby podle předem stanovených podmínek.
Technické provedení
• cihlová novostavba z keramických tvárnic Porotherm
• obvodové zdivo tl. 450 mm
• vnitřní nosné zdi tl. 300 a 250 mm
• vnitřní příčky 100–150 mm
• sedlová střecha s plechovou krytinou
• plastová okna s trojsklem
• příprava na venkovní žaluzie v 1. nadzemním podlaží
• energetická náročnost budovy: třída A
Technické vybavení
• elektřina 230 / 400 V
• veřejný vodovod
• veřejná kanalizace s čerpadlem
• retenční nádrž na dešťovou vodu
Vytápění domu je plánováno kombinací elektrického kotle a krbových kamen s výměníkem.
Plynová přípojka zde není plánována, protože plynovod se nachází ve větší vzdálenosti od pozemku.
Internet je aktuálně řešen bezdrátově. V obci je zároveň plánováno zavedení optického internetu, jehož realizace je očekávána na jaře 2026.
Parkování bude zajištěno přímo u domu pod vlastním přístřeškem.
Novostavba rodinného domu není projektově určena pro osoby s omezenou schopností pohybu a orientace a není navržena jako bezbariérová.
Klidná lokalita na okraji obce, dostatek prostoru pro rodinný život a možnost dokončit si dům přesně podle vlastních představ.
Máte zájem o více informací nebo si chcete nemovitost prohlédnout osobně?
Ozvěte se nám a rádi vám dům představíme.